Plot in Alhaurín De La Torre

  • 235.000€
Alhaurín de la Torre, Málaga, Spain
For Sale Resale
Plot in Alhaurín De La Torre
Alhaurín de la Torre, Málaga, Spain
  • 235.000€

Description

Unique Opportunity: Developable Land with a Semi-Detached House Project and a Building Permit granted and paid. You can start building immediately. Geotechnical study, Basic Project and Execution Project, visas, municipal taxes.
Plot with the best orientation, southeast, the main facade faces a beautiful park and the rear facade has clear views.
We present you an excellent investment opportunity in a privileged environment. This developable land has a project for a semi-detached house with a contemporary design.
Main features:
– Strategic location: Located at Alhaurín de la Torre, you will enjoy the tranquility of an expanding area, but with the convenience of being close to everything. Just 10 minutes from the airport and 15 minutes from the center of Malaga, you will have quick access to essential services, shops and main communication routes. Ideal for both living and investing.
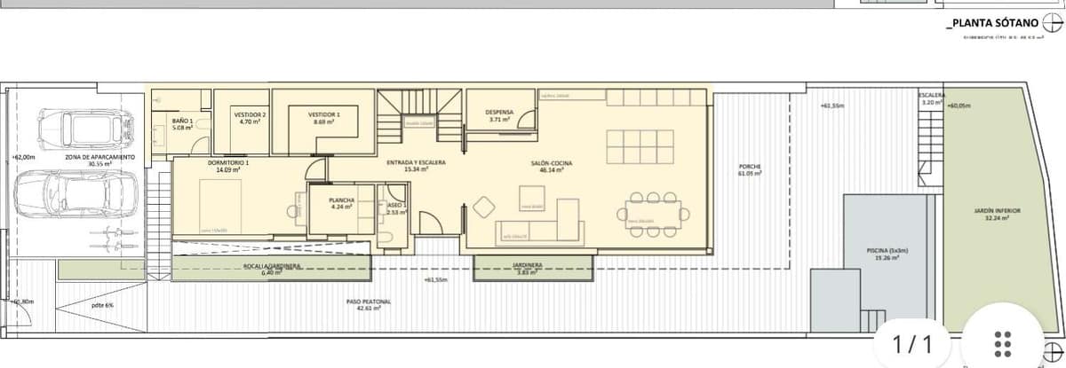
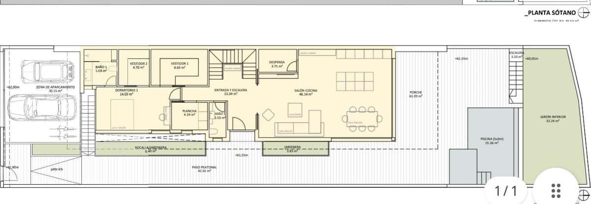
– Project included: Semi-detached house with 3 bedrooms, 2 dressing rooms, 3 bathrooms, 1 toilet, ironing room, pantry, basement with separate entrance and with a modern design that maximizes comfort and the use of spaces, offering spacious and bright interiors.
– Current status: Basic and execution project drawn up with building permit granted.
– Plot area: 350.72m² with a designed house of 245.68m² built and spacious exteriors to enjoy a large space designed with a swimming pool, garden, terraces……
– Residential use: Ideal for families looking for their perfect home or for investors looking for a development with high future revaluation.
This land is the perfect option for those who want to materialize a personalized project or take advantage of a real estate investment in a growing area. Don't miss this opportunity!
In compliance with the decree of the Junta de Andalucía 208/2005 of October 11, clients are informed that the notarial, registry, i. t. p, and other expenses inherent to the sale, are not included in the price.
The data provided is for informational purposes only and has no contractual value. The offer is subject to errors, changes in price, availability and/or withdrawal from the market without prior notice.

 

Details

Updated on January 22, 2026 at 12:39 am
  • Property ID: R5019700
  • Price: 235.000€
  • Land Area: 350 ㎡
  • Bedroom: 0
  • Bathroom: 0
  • Property Type: Plot
  • Property Status: For Sale

Mortgage Calculator

Monthy
  • Down Payment
  • Loan Amount
  • Monthly Mortgage Payment
  • Property Tax
  • Home Insurance
  • PMI
  • Monthly HOA Fees
%
%
%
%
  • Address Alhaurín de la Torre, Málaga, Spain
  • City Alhaurín de la Torre
  • State/county Málaga
  • Country Spain

Similar Listings

Compare listings

Compare
hellospain
  • hellospain