Plot in Mijas

  • 1.450.000€
Mijas, Málaga, Spain

Description

Urban Development Land – Mijas Pueblo – Costa del Sol.

Magnificent urban plot for sale in a highly sought-after area. The plot is surrounded by mature trees, ensuring privacy. One minute by car from the centre of Mijas Pueblo.

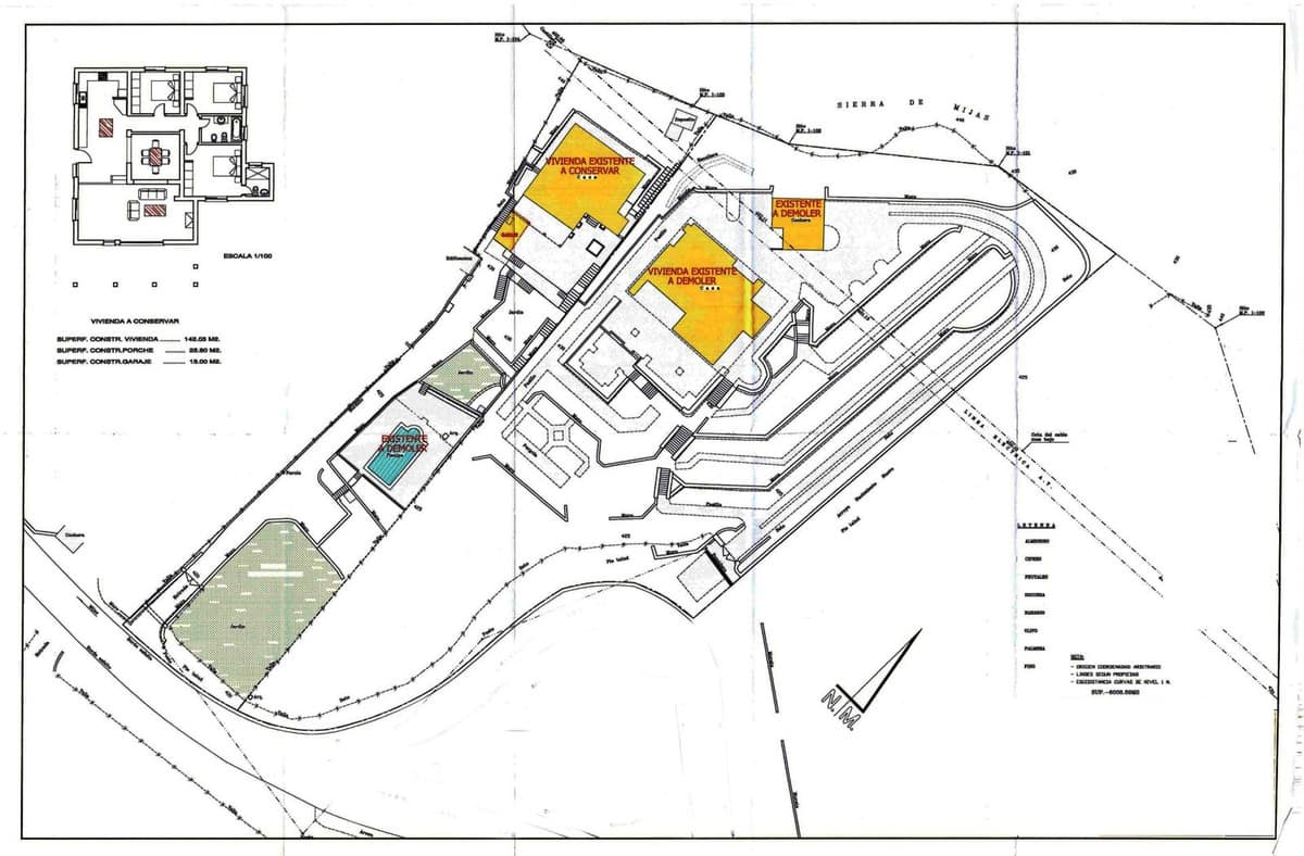
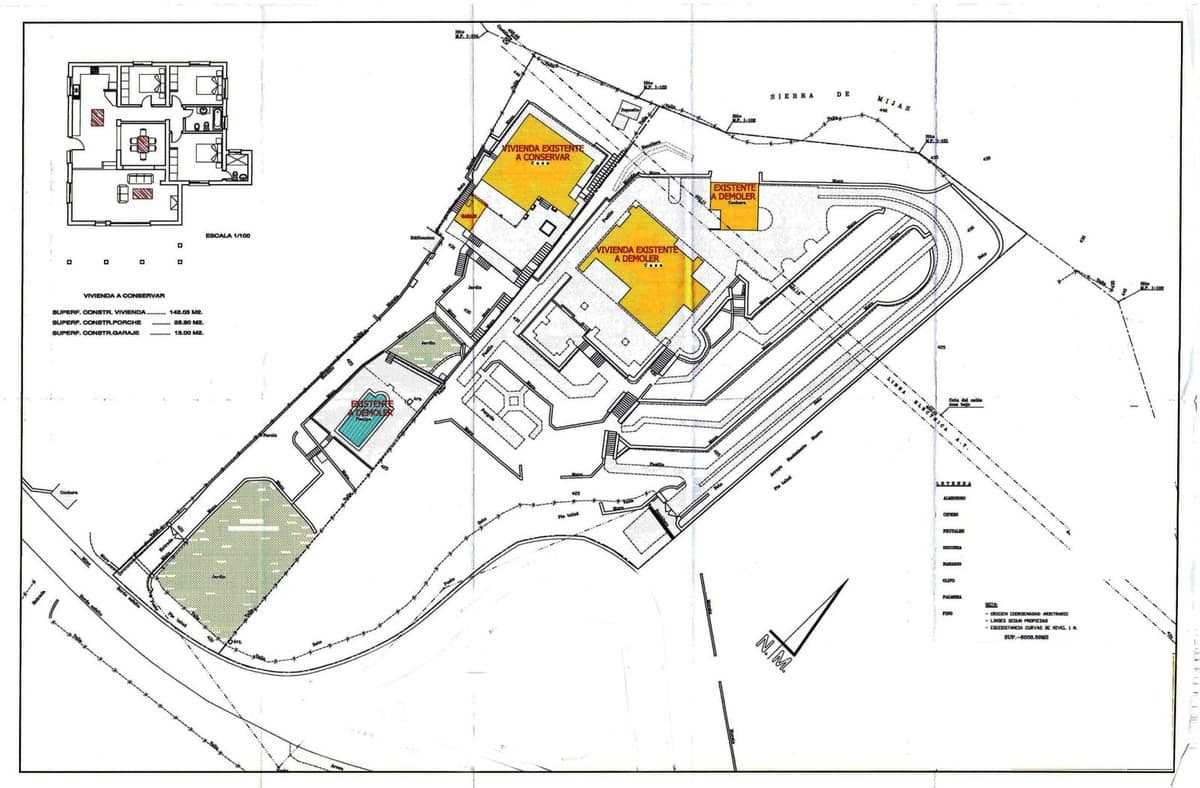
A Detailed Development Study (“Estudio de Detalle) has already been approved to build 11 townhouses and 1 villa.
________________________________________
Technical Data:

• The plot is located in sector U.E. S-19 of Mijas
• It complies with all boundary limits established in the alignment plans
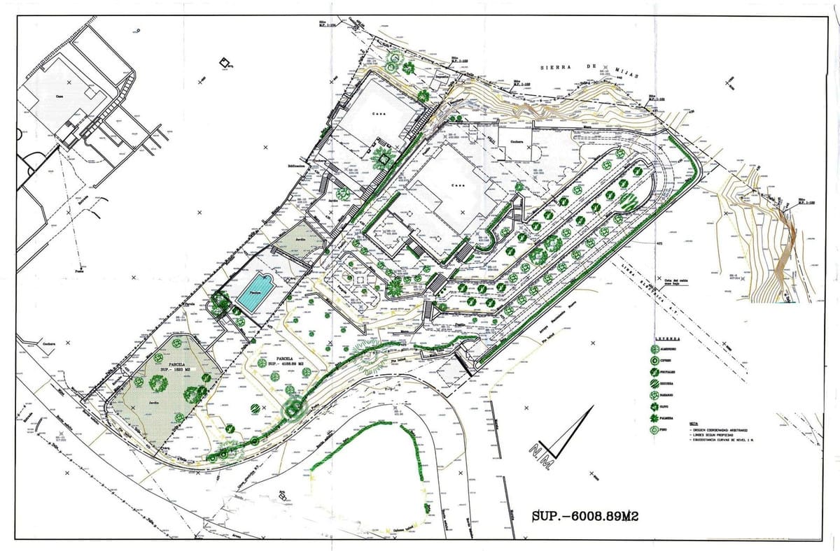
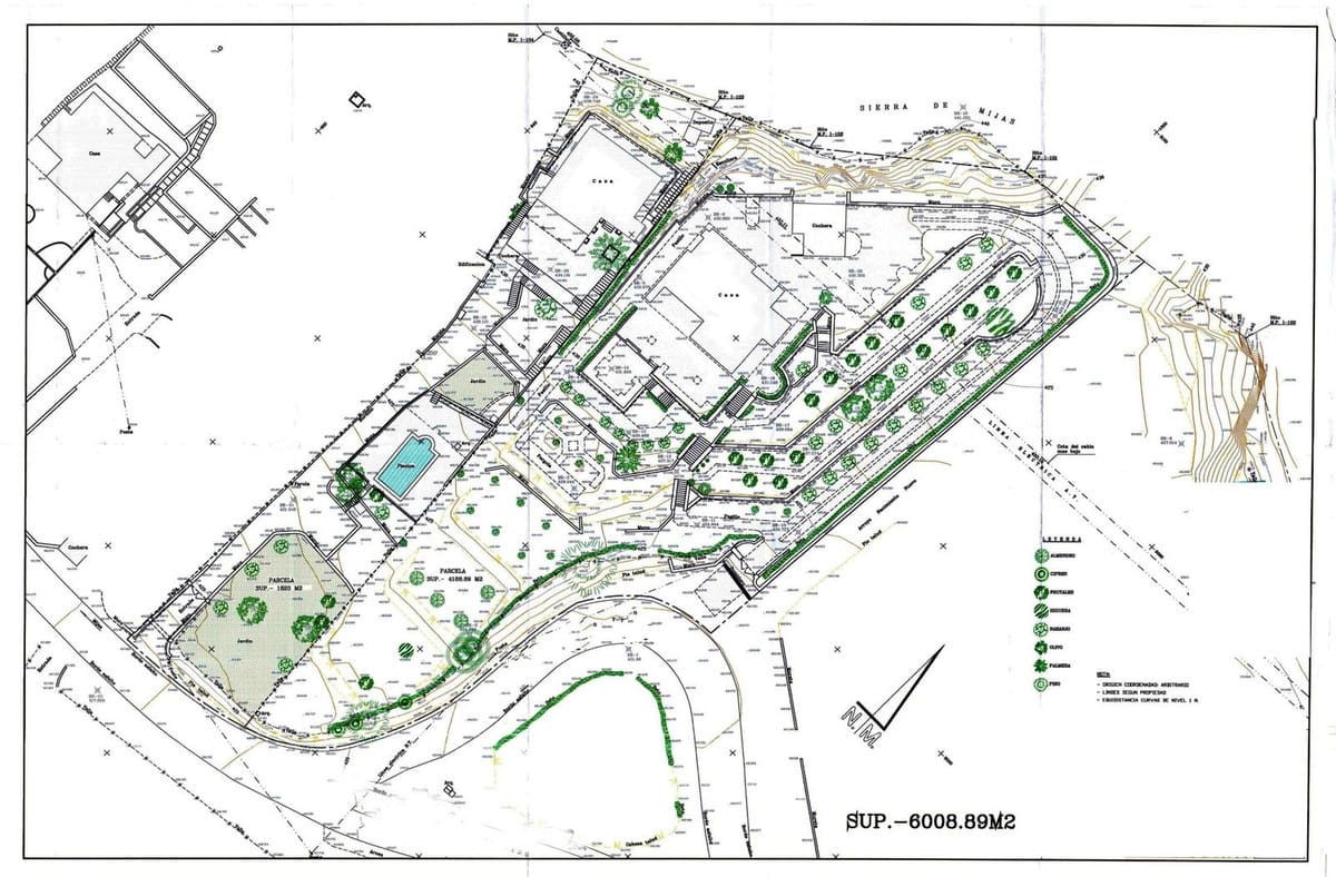
• Total surface area: 6,008.89 m² according to IBI records (4,188.89 m² + 1,820.00 m²)
________________________________________
According to the Mijas PGOU, the following construction limits apply:

• Building coefficient: 0.35 m²/m²
• Number of permitted properties: 1 residence per 500 m²
• Maximum number of floors: 2

TOTAL BUILDABLE AREA ACCORDING TO PGOU: 2,103.11 m² (maximum 12 dwellings)
________________________________________
The approved Detailed Development Study proposes:

• Buildable area: 1,918.74 m²
• Number of dwellings: 12
• Maximum height: 2 floors
• Plot coverage: 21.14%
• Parking spaces: 18
________________________________________
The PGOU classifies the plots as AIS-3. According to Article 229, section 4b of the PGOU, developments of semi-detached single-family housing (ADS) are permitted, processed through a Detailed Development Study.
The minimum plot size required for such developments in the AIS-3 Subzone is 4,000 m². In this case, the plot has 6,008.89 m².

 

Details

Updated on April 11, 2026 at 7:14 pm
  • Property ID: R5274217
  • Price: 1.450.000€
  • Land Area: 6009 ㎡
  • Bedroom: 0
  • Bathroom: 0
  • Property Type: Plot
  • Property Status: For Sale

Mortgage Calculator

Monthy
  • Down Payment
  • Loan Amount
  • Monthly Mortgage Payment
  • Property Tax
  • Home Insurance
  • PMI
  • Monthly HOA Fees
%
%
%
%
  • Address Mijas, Málaga, Spain
  • City Mijas
  • State/county Málaga
  • Country Spain

Similar Listings

Compare listings

Compare
hellospain
  • hellospain