Plot in Sotogrande

  • 800.000€
Sotogrande, Cádiz, Spain
For Sale Resale
Plot in Sotogrande
Sotogrande, Cádiz, Spain
  • 800.000€

Description

Elevated plot with uninterrupted golf and lake views in Sotogrande Alto.
Located in the Almenara area of Sotogrande Alto, just steps from SO Sotogrande and within close proximity to the Sotogrande International School, this 3,315 m² plot enjoys a privileged south west orientation and open front views over the Alto Club golf course and its lake.
The plot is elevated, ensuring privacy and uninterrupted views, and is surrounded by high quality completed villas, consolidating the residential character of the area. Its orientation allows for optimal light throughout the day and ideal positioning of terraces, pool and main living areas.
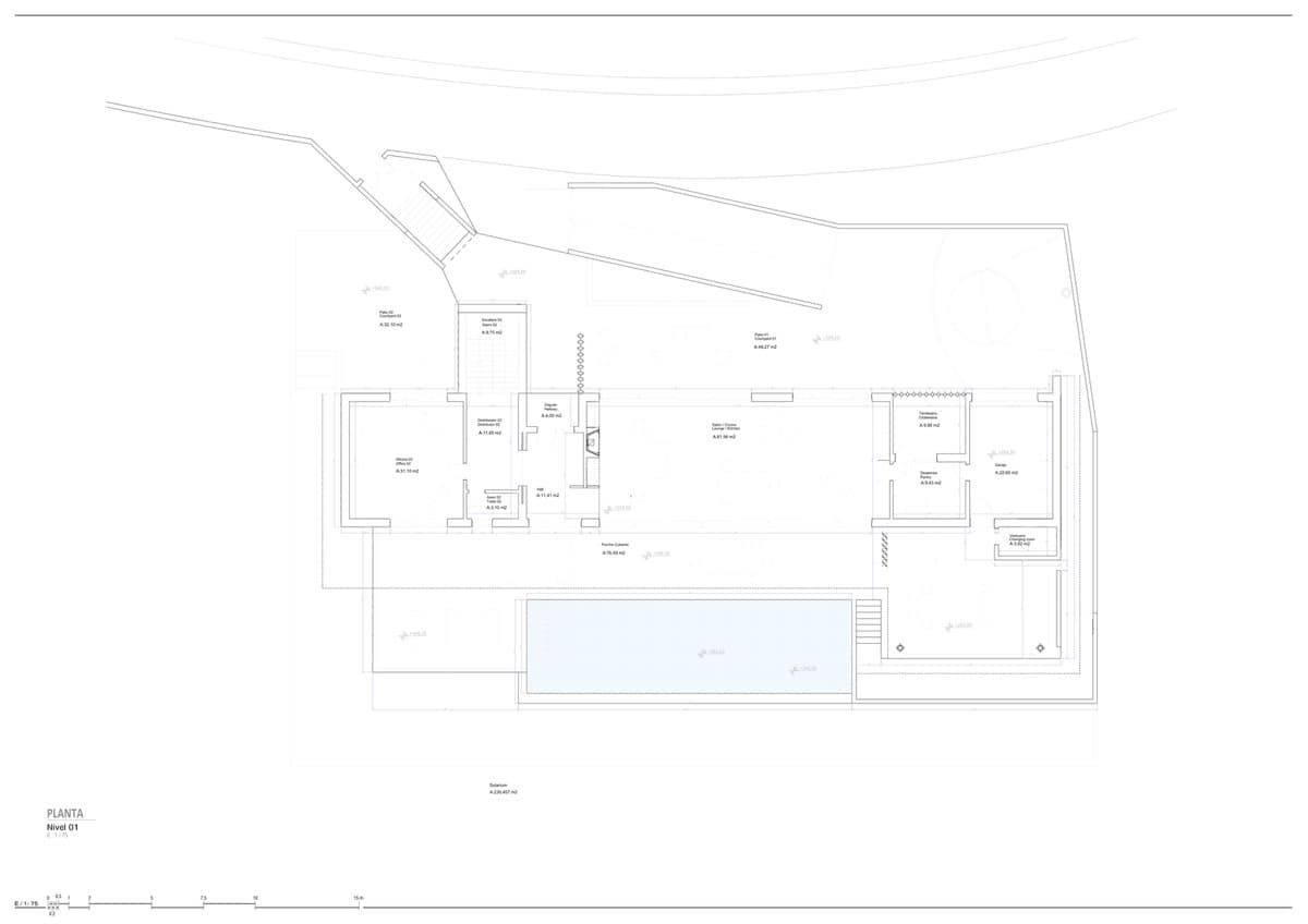
With 33 percent buildability, the plot allows for approximately 1,000 m² of construction, offering the possibility to create a substantial contemporary residence. The sale includes a fully developed architectural project by Casasola Arquitectos, known for refined modern design and strong integration between architecture and landscape.
The project has already been granted building licence, allowing immediate commencement of construction. All utilities are onsite and a complete landscaping project is included in the sale, providing clarity and efficiency from day one.
Ownership is ready to transfer, making this a streamlined acquisition for a buyer seeking a prime location in Sotogrande Alto with immediate development potential and no planning uncertainty.
*The images presented are for reference only and may vary from the final product.

 

Details

Updated on April 11, 2026 at 5:08 pm
  • Property ID: R5315077
  • Price: 800.000€
  • Property Size: 1000 ㎡
  • Land Area: 3315 ㎡
  • Bedroom: 0
  • Bathroom: 0
  • Property Type: Plot
  • Property Status: For Sale

Mortgage Calculator

Monthy
  • Down Payment
  • Loan Amount
  • Monthly Mortgage Payment
  • Property Tax
  • Home Insurance
  • PMI
  • Monthly HOA Fees
%
%
%
%
  • Address Sotogrande, Cádiz, Spain
  • City Sotogrande
  • State/county Cádiz
  • Country Spain

Similar Listings

Compare listings

Compare
hellospain
  • hellospain