5 bedroom House in Fuengirola

  • 531.000€
Fuengirola, Málaga, Spain
For Sale Resale
5 bedroom House in Fuengirola
Fuengirola, Málaga, Spain
  • 531.000€

Description

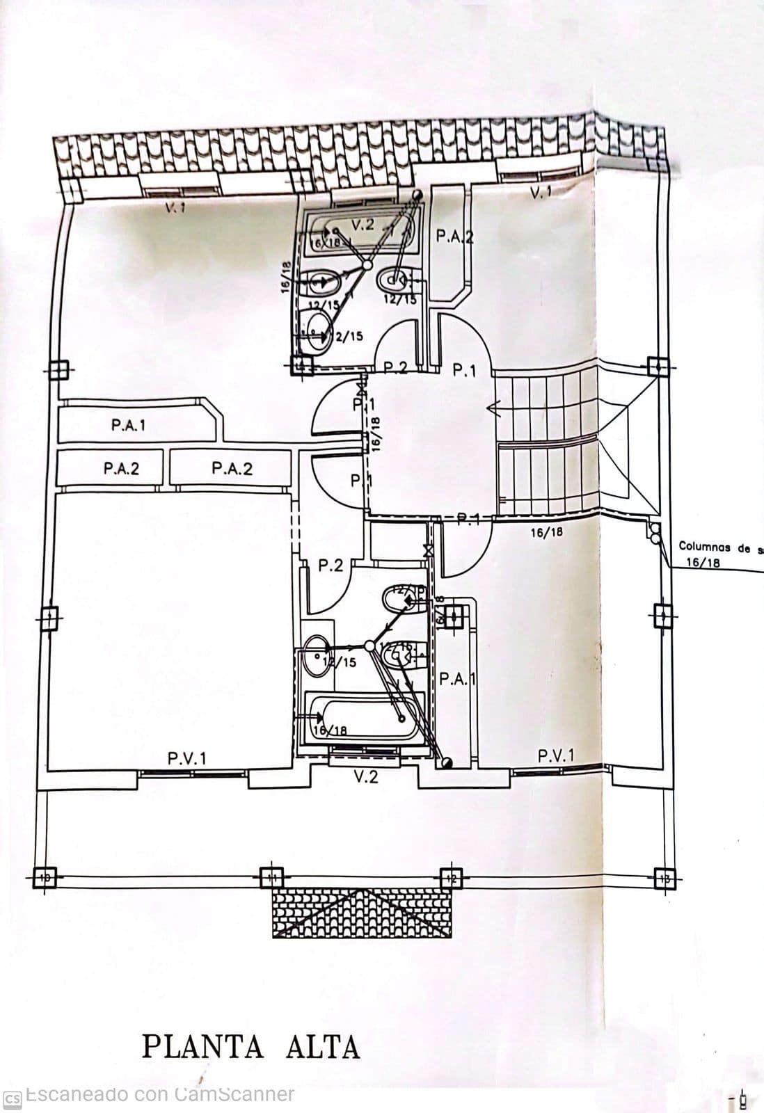
Unfinished single-family housing project on a 243m2 urban plot in Los Boliches (Fuengirola), with a fantastic location, in a very quiet residential area close to all services. According to the plan, on the ground floor we find a large living room, three bedrooms, a kitchen with access to a very large interior patio facing southwest. The upper floor is distributed in four bedrooms with built-in wardrobes and two full bathrooms. Solarium with panoramic views. The house has a constructed area of 230m2. It has a basement with the same size as the home. A home that you can finish by customizing it to your liking and down to the last detail. Don't miss this opportunity to live where you've always wanted!

 

Details

Updated on February 10, 2026 at 3:30 am
  • Property ID: R4672018
  • Price: 531.000€
  • Property Size: 230 ㎡
  • Land Area: 243 ㎡
  • Bedrooms: 5
  • Bathrooms: 3
  • Property Type: Townhouse
  • Property Status: For Sale

Mortgage Calculator

Monthy
  • Down Payment
  • Loan Amount
  • Monthly Mortgage Payment
  • Property Tax
  • Home Insurance
  • PMI
  • Monthly HOA Fees
%
%
%
%
  • Address Fuengirola, Málaga, Spain
  • City Fuengirola
  • State/county Málaga
  • Country Spain

Similar Listings

Compare listings

Compare
hellospain
  • hellospain