Plot in Mijas

  • 390.000€
Mijas, Málaga, Spain

Description

WITH LICENSE !!

Plot for sale with licence for ready to build Villa

Exclusive plot located in Cerro del Águila, one of the most pleasant residential areas of Mijas.
The plot already has a fully approved and paid building license, allowing construction to start immediately without administrative delays.

The planned project features an exceptional villa, designed to take full advantage of the stunning open views towards La Cala de Mijas, the Mediterranean Sea, and the surrounding mountains.
Its elevated position and orientation offer breathtaking panoramic scenery.

The urbanization is peaceful, well-maintained, and highly desirable, with a pleasant residential atmosphere and friendly neighbours.
It is also very close to several golf courses, amenities, restaurants, and just minutes from the beach.

A perfect opportunity to build your dream home in a prime location on the Costa del Sol, combining nature, sea views, and excellent accessibility.

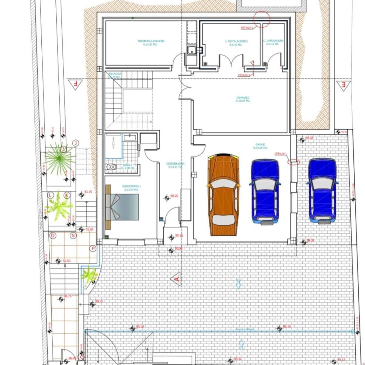
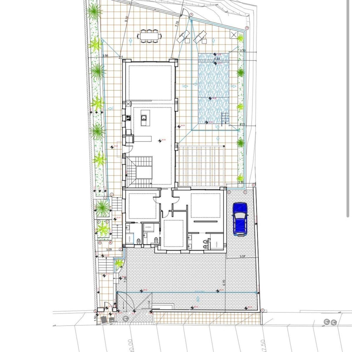
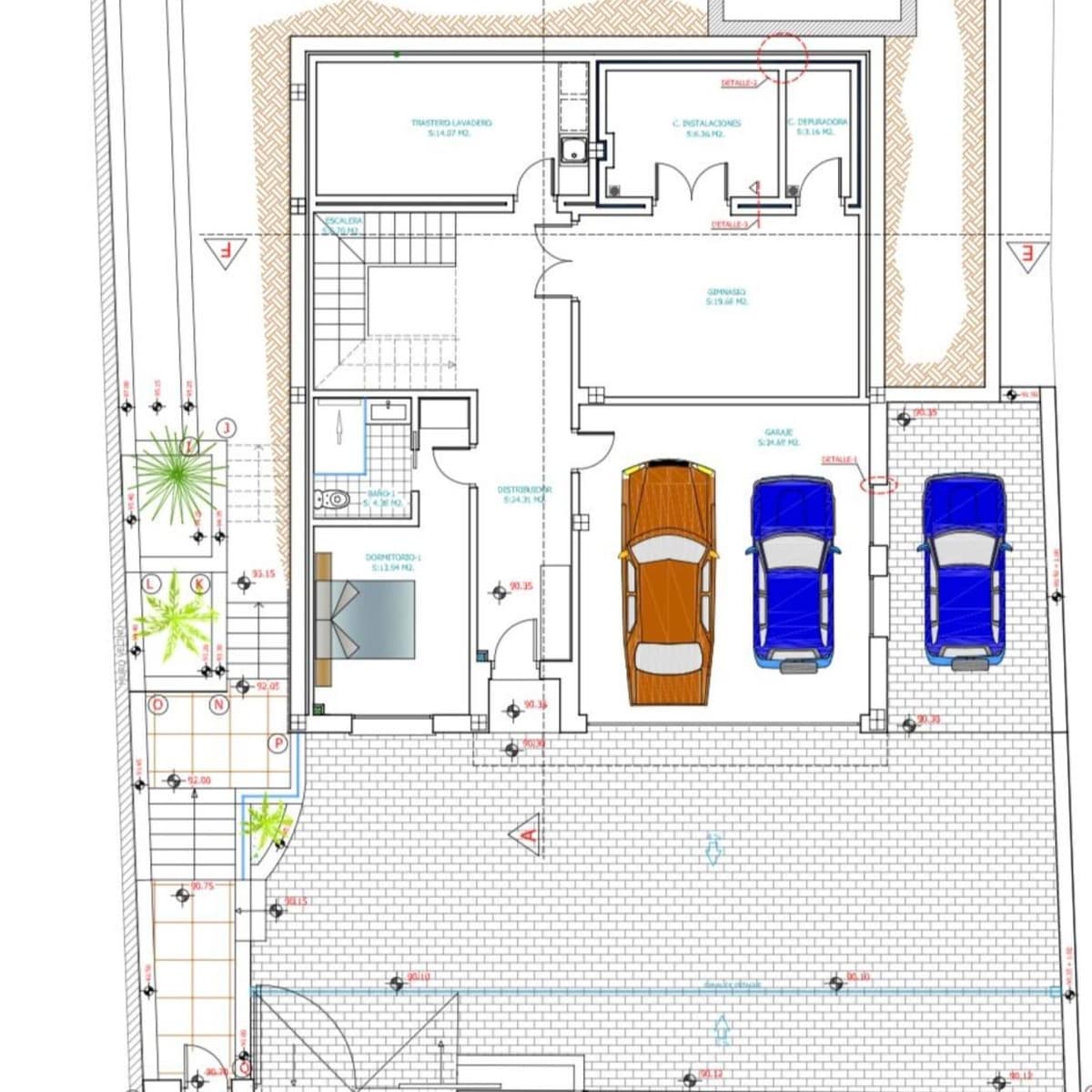
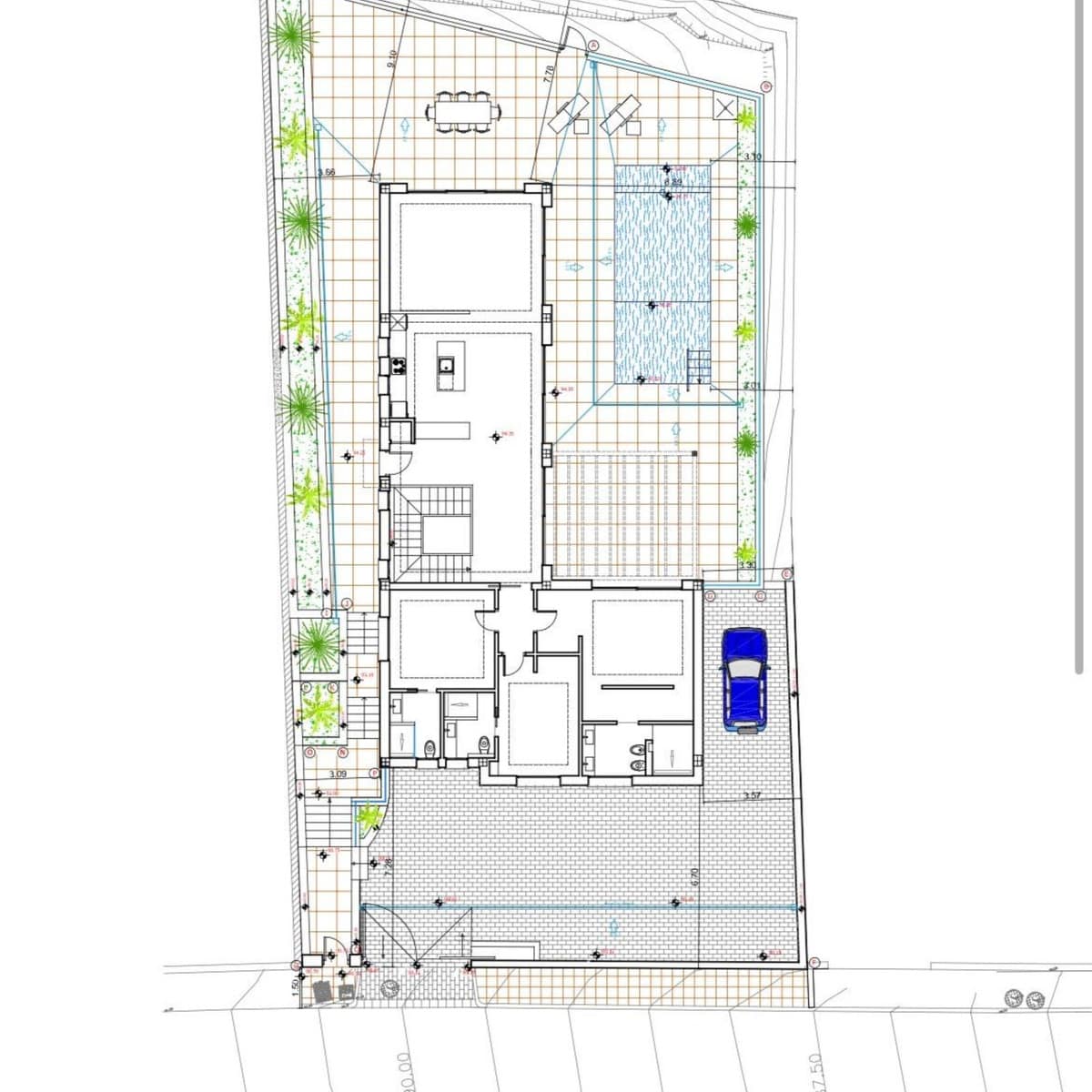
Full licence

Technical details
License with project ready to build
• Plot size:
690.00 m² (according to Title Deed / Nota Simple)
706.00 m² (according to Cadastre)
• Planning regulations
• Typology: Detached single-family house
• Subtype: AIS-3
• Urban parameters (AIS-3):
• Net buildability: 0.35 m²t/m²s → 241.50 m² buildable area
• Maximum plot occupancy: 35% → 241.50 m²
• Boundary setbacks: 3.00 m
• Minimum plot size: 500 m²
• Maximum height: Ground floor + 1 (7.00 m)
Residential Plot, Mijas, Costa del Sol.
Garden/Plot 706 m².

Setting : Close To Shops, Close To Schools, Urbanisation.
Views : Sea, Mountain, Golf, Beach, Country.
Utilities : Electricity, Drinkable Water.
Category : Bargain, Beachfront, Cheap, Golf, Holiday Homes, Investment, Luxury, Off Plan, With Planning Permission.

 

Details

Updated on May 15, 2026 at 3:04 pm
  • Property ID: R5365036
  • Price: 390.000€
  • Land Area: 706 ㎡
  • Bedroom: 0
  • Bathroom: 0
  • Property Type: Plot
  • Property Status: For Sale

Mortgage Calculator

Monthy
  • Down Payment
  • Loan Amount
  • Monthly Mortgage Payment
  • Property Tax
  • Home Insurance
  • PMI
  • Monthly HOA Fees
%
%
%
%
  • Address Mijas, Málaga, Spain
  • City Mijas
  • State/county Málaga
  • Country Spain

Similar Listings

Compare listings

Compare
hellospain
  • hellospain